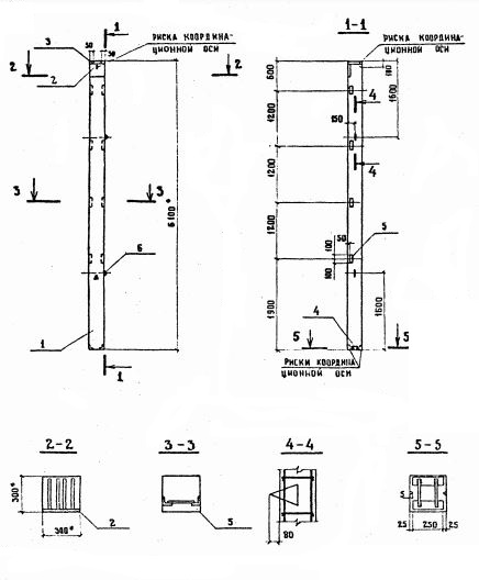
КФ 61
Характеристики изделия:
| Параметр | Значение |
|---|---|
| длина | 6100 мм |
| ширина | 300 мм |
| высота | 300 мм |
| вес | 1400 кг |
| серия | ТП 503-7-13.88 |
Цена:
Рассчитать стоимостьКФ 61 Колонны по проекту ТП 503-7-13.88.
| Параметр | Значение |
|---|---|
| длина | 6100 мм |
| ширина | 300 мм |
| высота | 300 мм |
| вес | 1400 кг |
| серия | ТП 503-7-13.88 |
КФ 61 Колонны по проекту ТП 503-7-13.88.