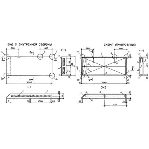
ПСТ 27.21.3.5

Чертеж изделия:
Характеристики изделия:
ПараметрЗначение
длина2700 мм
ширина350 мм
высота2085 мм
масса2280 кг
нормативный документШифр М25.13/98

ПСТ 27.21.3.5 Панели стеновые трёхслойные по Шифру М25.13/98.