А 29
Характеристики изделия:
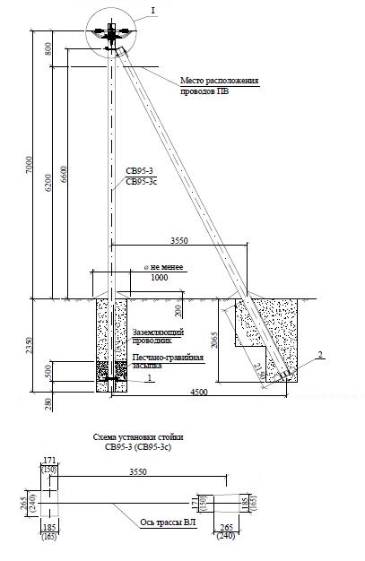
| Параметр | Значение |
|---|---|
| длина | 9350 мм |
| ширина | 185 мм |
| высота | 265 мм |
| масса | 900 кг |
| нормативный документ | Шифр 26.0085 |
Цена:
Рассчитать стоимостьА 29 Анкерные (концевые) одноцепные опоры Шифр 26.0085
| Параметр | Значение |
|---|---|
| длина | 9350 мм |
| ширина | 185 мм |
| высота | 265 мм |
| масса | 900 кг |
| нормативный документ | Шифр 26.0085 |
А 29 Анкерные (концевые) одноцепные опоры Шифр 26.0085