КК 120
Характеристики изделия:
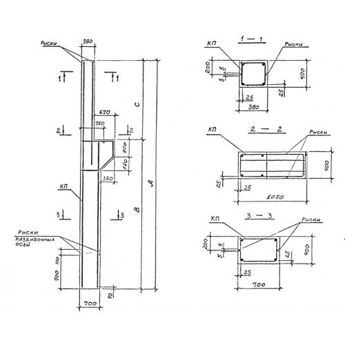
| Параметр | Значение |
|---|---|
| длина | 13050 мм |
| ширина | 400 мм |
| высота | 1050 мм |
| вес | 8400 кг |
| Шифр | 2021-164.1 |
Цена:
Рассчитать стоимостьКК 120 Колонны по Шифру 2021-164.1.
| Параметр | Значение |
|---|---|
| длина | 13050 мм |
| ширина | 400 мм |
| высота | 1050 мм |
| вес | 8400 кг |
| Шифр | 2021-164.1 |
КК 120 Колонны по Шифру 2021-164.1.
