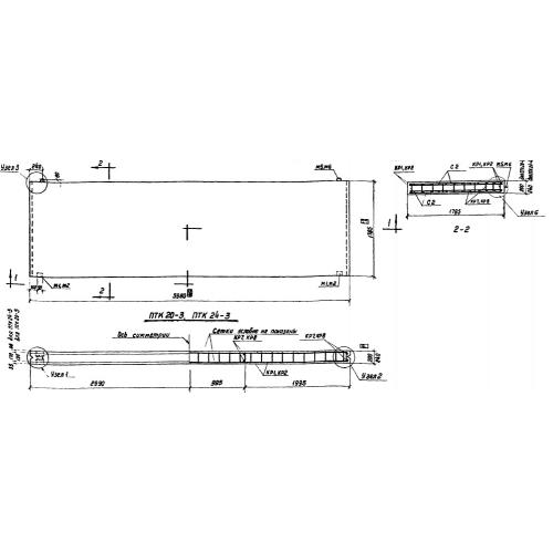
ПТК 20

Чертеж изделия:
Характеристики изделия:
ПараметрЗначение
длина5980 мм
ширина1785 мм
высота200 мм
вес2200 кг
серияСТ 02-18

ПТК 20 Панели керамзитбетонные трехслойные по серии СТ 02-18.