ЛМ 64-14

Чертеж изделия:
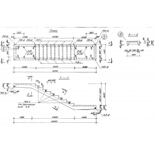
Характеристики изделия:
ПараметрЗначение
длина6370 мм
ширина1150 мм
высота1650 мм
масса2325 кг
нормативный документСерия ИИС 04-7

ЛМ 64-14 Лестничные марши по Серии ИИС 04-7.