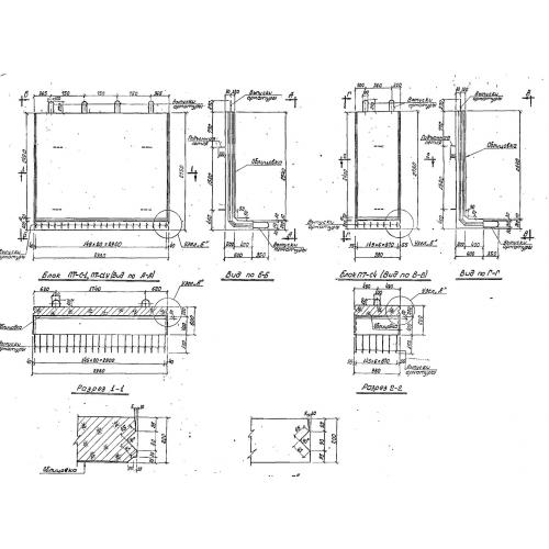
ПТ-С4

Чертеж изделия:
Характеристики изделия:
ПараметрЗначение
длина980 мм
ширина950 мм
высота2750 мм
масса1550 кг
нормативный документСерия 3.507-1

ПТ-С4 Стеновой блок подземных тоннелей по Серии 3.507-1.