ПЖБ 3-15 Плиты железобетонные шарнирно-соединяемые

Чертеж изделия:
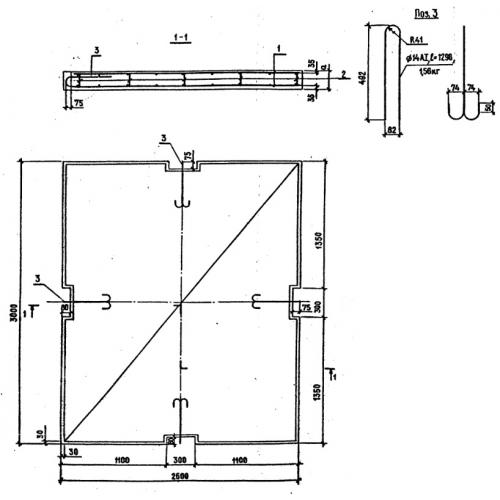
Характеристики изделия:
ПараметрЗначение
длина3000 мм
ширина2500 мм
высота150 мм
вес2780 кг
нормативный документСерия 3.503.9-78

ПЖБ 3-15 Железобетонные плиты с шарнирным соединением по Серии 3.503.9-78.