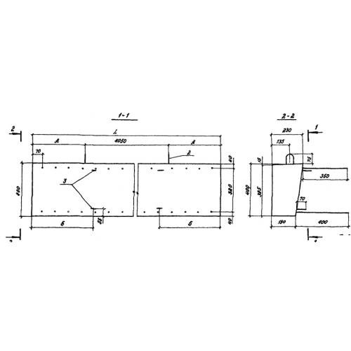
РН 2

Чертеж изделия:
Характеристики изделия:
ПараметрЗначение
длина5970 мм
ширина230 мм
высота400 мм
вес1250 кг
серия3.503.1-75

РН 2 Блоки насадки по серии 3.503.1-75.