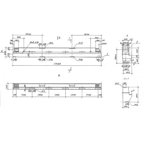
Б 42 ригели торцевые

Чертеж изделия:
Характеристики изделия:
ПараметрЗначение
длина7980 мм
ширина495 мм
высота800 мм
масса5750 кг
нормативный документСерия 1.420-12

Б 42  Ригели с полками для опирания плит  (однополочный ригель) Серия 1.420-12.