ПСТ 30.21.2.5 панели стеновые

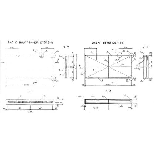
Чертеж изделия:
Характеристики изделия:
ПараметрЗначение
длина2980 мм
ширина250 мм
высота2085 мм
масса2270 кг
нормативный документСерия 1.232.1-7

ПСТ 30.21.2.5  Панели стеновые трехслойные (рядовые)  Серия 1.232.1-7.