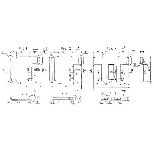
ПС 70.30.1.6
Характеристики изделия:
| Параметр | Значение |
|---|---|
| длина | 7000 мм |
| ширина | 160 мм |
| высота | 3040 мм |
| вес | 6000 кг |
| серия | 1.220.1-2 |
Цена:
Рассчитать стоимостьПС 70.30.1.6 Панели внутренних стен по серии 1.220.1-2.
| Параметр | Значение |
|---|---|
| длина | 7000 мм |
| ширина | 160 мм |
| высота | 3040 мм |
| вес | 6000 кг |
| серия | 1.220.1-2 |
ПС 70.30.1.6 Панели внутренних стен по серии 1.220.1-2.
