Б 13
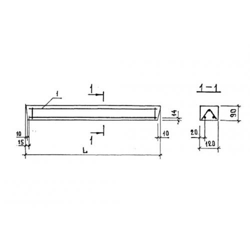
Характеристики изделия:
| Параметр | Значение |
|---|---|
| длина | 1300 мм |
| ширина | 120 мм |
| высота | 90 мм |
| вес | 35 кг |
| серия | 1.139-1 |
Цена:
Рассчитать стоимостьБ 13 Перемычки брусковые по серии 1.139-1.
| Параметр | Значение |
|---|---|
| длина | 1300 мм |
| ширина | 120 мм |
| высота | 90 мм |
| вес | 35 кг |
| серия | 1.139-1 |
Б 13 Перемычки брусковые по серии 1.139-1.
.jpg)