1ПР 16
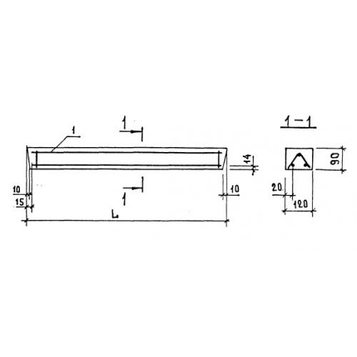
Характеристики изделия:
| Параметр | Значение |
|---|---|
| длина | 1680 мм |
| ширина | 120 мм |
| высота | 90 мм |
| вес | 45 кг |
| серия | 1.138-10 |
Цена:
Рассчитать стоимость1ПР 16 Перемычки брусковые по серии 1.138-10.
| Параметр | Значение |
|---|---|
| длина | 1680 мм |
| ширина | 120 мм |
| высота | 90 мм |
| вес | 45 кг |
| серия | 1.138-10 |
1ПР 16 Перемычки брусковые по серии 1.138-10.
