ПБК 33.13

Чертеж изделия:
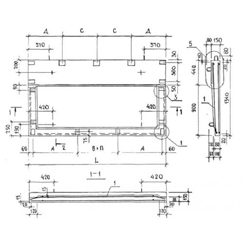
Характеристики изделия:
ПараметрЗначение
длина3290 мм
ширина1340 мм
высота150 мм
вес1330 кг
серия1.137.1 КЛ-1

ПБК 33.13 Плиты балконов консольные по серии 1.137.1 КЛ-1.