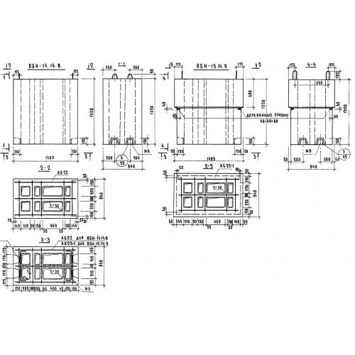
ВБН 15.14.9
Характеристики изделия:
| Параметр | Значение |
|---|---|
| длина | 1480 мм |
| ширина | 940 мм |
| высота | 1350 мм |
| вес | 1630 кг |
| серия | 1.134-3 |
Цена:
Рассчитать стоимостьВБН 15.14.9 Наружные вентиляционные блоки по серии 1.134-3.
| Параметр | Значение |
|---|---|
| длина | 1480 мм |
| ширина | 940 мм |
| высота | 1350 мм |
| вес | 1630 кг |
| серия | 1.134-3 |
ВБН 15.14.9 Наружные вентиляционные блоки по серии 1.134-3.
