ВБН 12.33.5
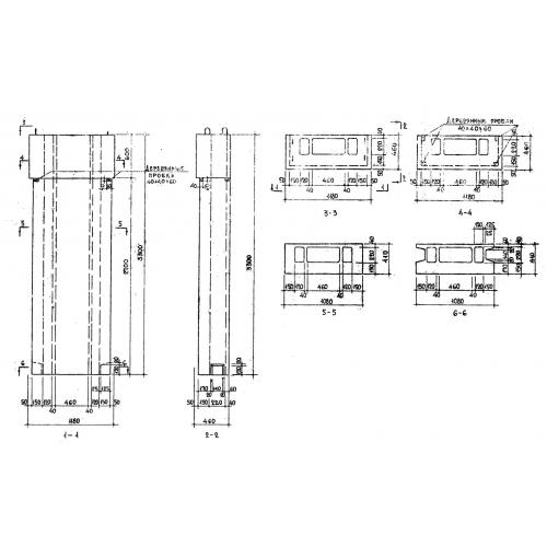
Характеристики изделия:
| Параметр | Значение |
|---|---|
| длина | 1180 мм |
| ширина | 460 мм |
| высота | 3300 мм |
| вес | 1335 кг |
| серия | 1.134-3 |
Цена:
Рассчитать стоимостьВБН 12.33.5 Наружные вентиляционные блоки по серии 1.134-3.
| Параметр | Значение |
|---|---|
| длина | 1180 мм |
| ширина | 460 мм |
| высота | 3300 мм |
| вес | 1335 кг |
| серия | 1.134-3 |
ВБН 12.33.5 Наружные вентиляционные блоки по серии 1.134-3.
