НР5-58.27.3-2б

Чертеж изделия:
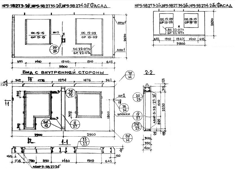
Характеристики изделия:
ПараметрЗначение
Длина5800 мм
Ширина300 мм
Высота2650 мм
Масса4670 кг
Нормативный документСерия 1.132-1

НР5-58.27.3-2б   Наружная стеновая панель рядовая по Серии 1.132-1.