ЛМП 57.11.14

Чертеж изделия:
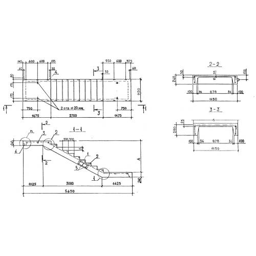
Характеристики изделия:
ПараметрЗначение
длина5650 мм
ширина1150 мм
высота1400 мм
вес2250 кг
серия1.050.1-2

ЛМП 57.11.14 Лестничные марши ребристые с полуплощадками по серии 1.050.1-2.