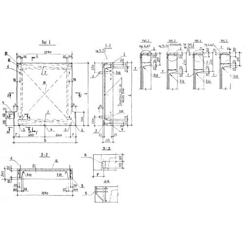
ЛПП 14.12 лестничные площадки

Чертеж изделия:
Характеристики изделия:
ПараметрЗначение
длина1440 мм
ширина1200 мм
высота240 мм
масса500 кг
нормативный документСерия 1.050.1-2

ЛПП 14.12  Лестничные площадки и полуплощадки ребристые Серия 1.050.1-2.