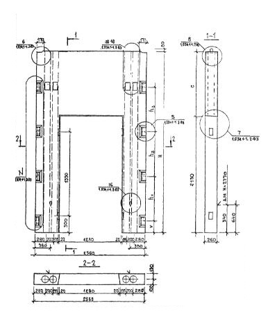
ВДП 26-28

Чертеж изделия:
Характеристики изделия:
ПараметрЗначение
длина2560 мм
ширина260 мм
высота2770 мм
масса2175 кг
нормативный документСерия 1.034.1-1

ВДП 26-28  Вентиляционные блоки-диафрагмы жесткости с проемом (Серия 1.034.1-1).