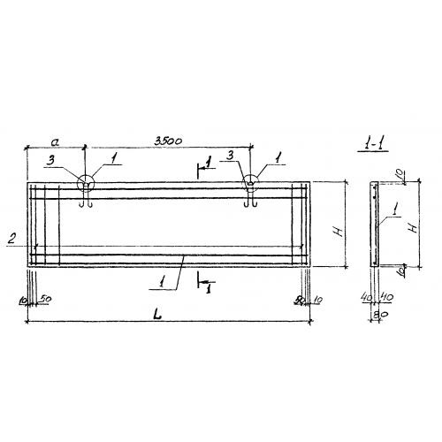
ПГ 55.12 панели перегородки
Характеристики изделия:
| Параметр | Значение |
|---|---|
| длина | 5540 мм |
| ширина | 80 мм |
| высота | 1185 мм |
| масса | 660 кг |
| нормативный документ | Серия 1.030.9-2 |
Цена:
Рассчитать стоимостьПГ 55.12 Перегородки панельные зданий промышленных и сельскохозяйстыенных предприятий Серия 1.030.9-2.
