Ф3
Характеристики изделия:
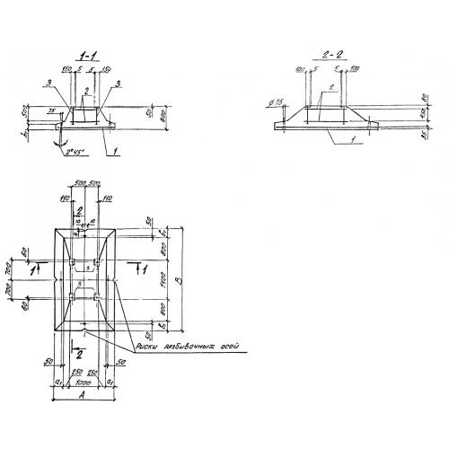
| Параметр | Значение |
|---|---|
| длина | 2400 мм |
| ширина | 3900 мм |
| высота | 800 мм |
| вес | 9530 кг |
| серия | 0-221-84 |
Цена:
Рассчитать стоимостьФ3 Плиты фундаментные по серии 0-221-84.
| Параметр | Значение |
|---|---|
| длина | 2400 мм |
| ширина | 3900 мм |
| высота | 800 мм |
| вес | 9530 кг |
| серия | 0-221-84 |
Ф3 Плиты фундаментные по серии 0-221-84.
