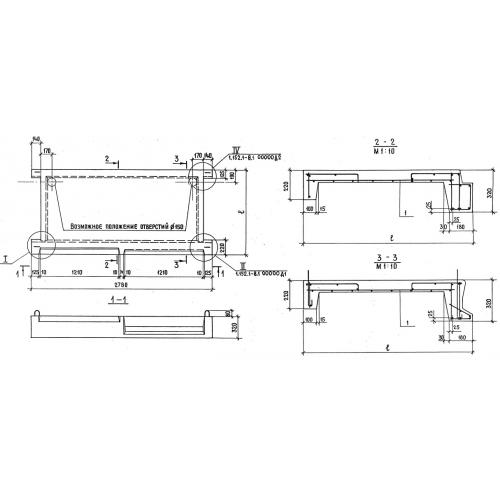
2ЛП 25.13 лестничные площадки ребристые

Чертеж изделия:
Характеристики изделия:
ПараметрЗначение
длина2500 мм
ширина1300 мм
высота320 мм
масса1100 кг
нормативный документГОСТ 9818-85

2ЛП 25.13  Лестничные площадки ребристые ГОСТ 9818-85.